Ett fritidshus och en separat ateljébyggnad för en konstnär på Lovön. En tomt i ett naturreservat mellan en bergssluttning och vattnet. Träbyggnader utan väsen som försöker smälta samman med naturen. Byggherrens önskemål var ett hus som skulle vara mysigt att vara i både vinter och sommar. Inte för stora fönster och en centralt placerad murstock med en kakelugn mot vardagsrummet och en järnspis mot köket.
Huset sett från grusvägen.
Husets entré.
Entrédörren.
Huset sett från ateljén.
Huset sett från naturreservatet.
Matplatsen med järnspisen och bakom murstocken skymtar vardagsrummet.
Ateljén.
Ateljén med fönster mot norr.
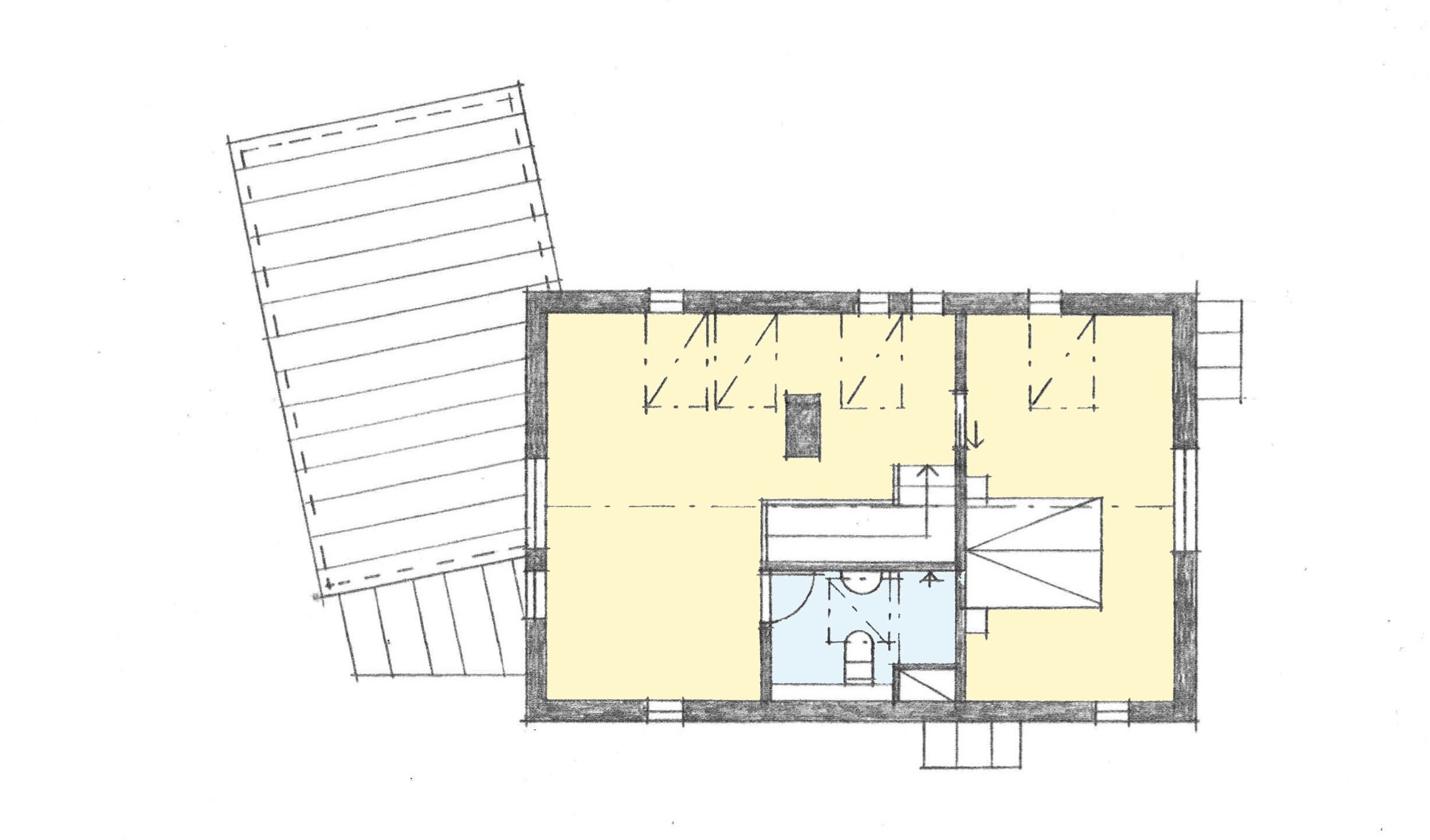
Fritidshusets bottenvåning
Övervåningen
Sektion
Ett litet enrums fritidshus på Väddö med storslagen utsikt byggdes till med en lekfull låda i två plan och en mellanrumsentré.
Nybyggnad av enfamiljshus på Storholmen, Lidingö.
Stor tillbyggnad av litet hus.
Fritidshus på ö för den stora familjen. Spännande skrymslen och vrår på lekloftet och balkong med milsvid utsikt.
Renovering och restaurering av öländskt torp som används som fritidshus. Tillbyggnad med kök och badrum på baksidan. Nybyggnad av gästhus.
Nybyggnad av fritidshus.
Nybyggnad av stall och ridhus på Färingsö.
En vanlig 50-talsvilla i gult tegel fick ett lyft med en tillbyggnad i trä, harmoniserande färgsättning och likadana plåttak. Originalbyggnaden och tillbyggnaden hålls samman av en ny altan.
Äldre hus på Färingsö fick tillbyggnad med ny entré och badrum samt nytt garage.
Litet hus på Storholmen, Lidingö.
Inredning i Järfälla padelhall